Edificio in Vendita in Cortile Pirandello 21 a Bronte
€ 140.000
Catania
Dettagli
Contratto Vendita
Rif 42959156-39
Prezzo € 140.000
Provincia Catania
Comune Bronte
Indirizzo Cortile Pirandello 21">
Classe energetica
G (DL 90/2013)
EPgl,nren 971 kwh/m2 anno
Condizioni da ristrutturare
Consistenze
| Descrizione | Superficie | Sup. comm. |
|---|---|---|
| Principali | ||
| Immobile - piano terra | 200 Mq | 200 Mqc |
| Totale | 200 Mqc | |
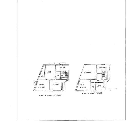
Edificio residenziale composto da: un Appartamento su due piani composto da 5 vani catastali. con ingresso dal Cortile Pirandello n 21 e 22; appartamento ai piani secondo e terzo, composto da 7,5 vani catastali, con ingresso da Cortile Pirandello n 22. Il terrazzo offre uno spazio all'aperto ideale per rilassarsi e godere della vista. Il prezzo richiesto è di Eu.. 140.000, 00, trattabili, una grande opportunità per chi cerca una casa da ristrutturare e creare la propria. Non perdere questa occasione unica nel suo genere!
Richiedi maggiori informazioni
Contattaci
Dàga Immobiliare del Geom. Di Marco Vincenzo
Via R. Imbriani, 55 95034 BRONTE (CT)
Via R. Imbriani, 55 95034 BRONTE (CT)
P.IVA: 03226970873
+390957723324






