Trilocale in Vendita in Viale Cavalieri di Vittorio Veneto
€ 95.000
Bronte, Catania
Dettagli
Contratto Vendita
Rif 43005338-57 (43739256)
Prezzo € 95.000
Provincia Catania
Comune Bronte
Indirizzo Via Cavalieri di Vittorio Veneto">
Vani 3
Camere 2
Bagni 2
Classe energetica
F (DL 90/2013)
EPgl,nren 220,7 kwh/m2 anno
Riscaldamento autonomo
Condizioni abitabile
Arredato si
Consistenze
| Descrizione | Superficie | Sup. comm. |
|---|---|---|
| Principali | ||
| Immobile - 4° piano | 120 Mq | 120 Mqc |
| Totale | 120 Mqc | |
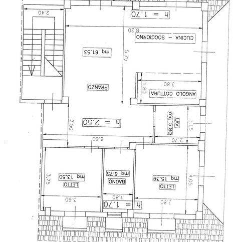
Bellissimo appartamento mansardato in vendita nel comune di Bronte in Viale Cavalieri di Vittorio Veneto n 60/B. Situato al terzo piano di un edificio. Questo luminoso e spazioso appartamento offre circa 120 mq di superficie abitabile. Le condizioni dell'immobile sono ottime, garantendo un'abitazione pronta per essere vissuta. L'appartamento dispone di tre locali, ideali per ospitare una famiglia o per creare uno spazio di lavoro. Ci sono anche due bagni, garantendo il massimo comfort per tutti gli abitanti. Inoltre, il piano terra offre un locale deposito, perfetto per riporre oggetti o biciclette. Il prezzo richiesto per questo appartamento mansardato è di Eu.. 95.000, 00 trattabile.
Richiedi maggiori informazioni
Contattaci
Dàga Immobiliare del Geom. Di Marco Vincenzo
Via R. Imbriani, 55 95034 BRONTE (CT)
Via R. Imbriani, 55 95034 BRONTE (CT)
P.IVA: 03226970873
+390957723324






